ЗАЦЕЉУЈУ СЕ РАНЕ ХИЛАНДАРА: После 20 година од катастрофалног пожара завржава се обнова Свете српске царске лавре на Атосу

Борис Субашић

02. 03. 2024. у 08:00

Ранђић: Могу да потврдим да ћемо до краја ове године завршити све спољне радове

ЗАЦЕЉУЈУ СЕ РАНЕ ХИЛАНДАРА: После 20 година од катастрофалног пожара завржава се обнова Свете српске царске лавре на Атосу

Фото Танјуг

 

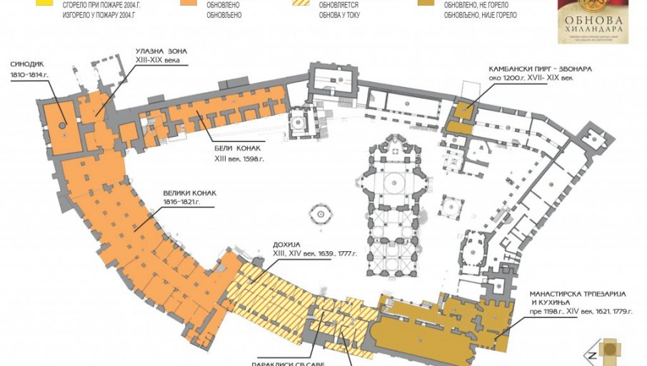
РАНЕ које је Светој српској царској лаври Хиландару нанео пожар пре 20 година, готово су зацељене: неимари су при крају обнове 5.897 метара квадратних уништених или тешко оштећених конака, што је око 55 одсто корисне површине манастира.

Рајко Каришић

Хиландарски конаци после пожара

Суве бројке ипак не могу да илуструју бол који у српском народу изазвала вест која је стигла са Свете Горе из ноћи између 3. и 4. марта 2004, да ватра гута огроман део задужбине Стефана Немање - Светог Симеона, и његових синова Светог Саве и Светог краља Стефана Првовенчаног, очева наше нације.

Данас, осврнувши се на две деценије видања материјалних рана манастира може се рећи да је ненадокнадиви материјални губитак донео неочекивану добробит, поновно уједињење Срба око немањићког Хиландара.

фото: Б.Субашић

Обновљени конаци

- Хвала Богу, могу да потврдим да ћемо да краја ове године завршити све спољне радове и на последњим деловима комплекса страдалим у пожару. Заправо, у Дохијар већ уносимо намештај, а у Игуменарији ће нам за следећу годину остати само део унутрашњих радова. Ускоро очекујемо и грчку екипу која ће у сарадњи са нашом учврстити и бедемски зид који повезује ове објекте - каже за "Новости" Миливој Ранђић, директор Задужбине Светог манастира Хиландара.

Борис Субашић

Саборни храм

Данашњи поклоници који сада долазе у Свету српску царску лавру први пут не могу ни да замисле слику згаришта после пожара изазваног варницема које су прошле кроз пукотину у димњаку конака Игуменарије и изазвале тињање сувих греда дрвене конструкцију древне грађевине.

Жар се претворио у пламен у највишем и најтеже доступном делу конака и монаси нису успевали да га угасе. Јак ветар је огањ проширио на цео северни део комплекса. Сагореле дрвене конструкција виших спратова су падале под тежином кровова од камених плоча и рушиле ниже спратове. Пожар се зауставио тек на празном простору простору између Белог конака и Пирга Светог Саве. После првог запрепашћења и ужаса због катастрофе, Срби из свих крајева света су се 2006. године тргли и ујединили у обнови Хиландара, обнављајући себе.

- Хиландар је најстарија српска установа која живи у континуитету и зато се са толико пажње и нестрпљења пратила његова обнова. Око Хиландара Срби имају јединствену мисао, он је наша историјска вододелница, на њега су сви поносни и сви желе да у њему све буде у савршеном поретку. Јер, иако Хиландар као ни Света Гора не изгледају и не живе као у 12. веку, то је ипак и данас "друга планета", издвојени богоцентрични свет. Љубав према Хиландару сведочи да Срби као народ имају тај богоцентрични свет као идеал, чак и када не умеју то да артикулишу. За Србе Хиландар није обичан симбол, ми се по њему препознајемо и самоодређујемо. Његово братство можемо да упоредимо са породицом која постоји 825 година и бави се очувањем Свете српске царске лавре по типику Светог Саве - каже Ранђић.

Борис Субашић

Да се крај обнове назире потврдио је и хиландарски игуман Методије у Солуну крајем јануара приликом освећења и свечаног отварања нових просторија за Српску допунску школу "Свети Сава".

- Целе ове године ћемо радити и сигурно и неко време наредне. Морамо да узмемо у обзир да смо имали застоје и у време короне и у време економске кризе, тако да није баш све ишло онако како је планирано, али слава Богу, после 20 година је крај врло близу. Држава Србија је највећи добротвор и ктитор обнове манастира, посебно од када је усвојен Закон о манастиру Хиландару у Скупштини Србије, али и пре тога, тако да је и то прилика да се после 825 година откад је манастир основан, још једном и на тај начин и практично покаже да је манастир Хиландар, иако ван територије Србије, српска светиња и најважније српско наслеђе - рекао је игуман Методије.

О Хиландару је много речено и писано, о његовом духовном и културном значају, али се најмање зна о његовој вероватно највећој улози у најтежим временима. Наиме, Српска царска лавра на Светој Гори је током османске власти био једини део Србије на коме је екстериторијално очувана српска државност. На њему се правно темељи обнова Србије у 19. веку. Мало је научника који су у другој половини 20. века имали снаге и храбрости да се баве Хиландаром, а управо у то време заблистала је академик др Мирјана Живојиновић, која је својим истраживањима и преводима пронела славу Немањине задужбине и открила је целом свету.

 

- Историја Хиландара показује да су његови монаси одиграли велику улогу у животу Српске цркве, најпре у њеном организовању, а затим руковођењу. Најспособнији хиландарци су се враћали у матицу да би, обично по жељи српског краља, заузели руководеће положаје - од епископа до архиепископа. Хиландар је постао један од најзначајнијих културних и верских центара средњовековне Србије. Везе српског светогорског манастира са матичном земљом су остале трајне и стога је историја Хиландара део прошлости српског народа - записала је академик Мирјана Живојиновић у непревазиђеној монографији "Историја Хиландара: од оснивања манастира 1198. до 1335. године" о првим вековима светиње.

Веома симболично, пред окончање обнове Свете српске царске лавре, по одлуци Светог архијерејског синода Орденом Светог Саве трећег степена одликована је академик Мирјана Живојиновић, која је живот дословно посветила проучавању и превођењу грађе о Хиландару.

Фото Б. Субашић

Улаз у манастир

ЗАШТИТА И РЕСТАУРАЦИЈА НАСЛЕЂА

НА састанку Комисије за Хиландар у Министарству културе одржаном 20. фебруара усвојен је извештај о радовима и активностима у оквиру Програма обнове у 2023. и Програм рада и финансијског плана за 2024. годину. Заменик председника Комисије, министар Никола Селаковић, који је председавао, констатовао је да ће закључно са 2024. бити завршени грађевинско-занатски радови на објектима страдалим у пожару.

Упоредо са њиховом обновом ради се на унапређењу и изградњи инфраструктуре манастира: путне, водоводне и канализационе инфраструктуре, противпожарне заштите, грејања, као и на изградњи соларног поља са трафостаницама. Настављена је и заштита и рестаурација покретног наслеђа Хиландара: живописа, предмета ликовне и примењене уметности, старих и ретких штампаних књига, архивске и библиотечке грађе, као и предмета етнографске збирке.

Пратите нас и путем иОС и андроид апликације

Pratite vesti prema vašim interesovanjima

Novosti Google News
АМЕРИКАНЦИ ПИШУ: Србија прва набавила хиперсоничне балистичке ракете у Европи, револуција у повећању ватрене моћи (ФОТО)

АМЕРИКАНЦИ ПИШУ: Србија прва набавила хиперсоничне балистичке ракете у Европи, револуција у повећању ватрене моћи (ФОТО)

ФОТОГРАФИЈЕ које приказују ловачки авион МиГ-29 Ратног ваздухопловства Србије са две балистичке ракете CM-400AKG кинеске производње указују на то да је Србија постала други страни корисник овог типа ракета, што значајно мења раније веома ограничене ударне могућности ових авиона, пише амерички специјализовани магазин "Милитари воч" у тексту под називом "Прве хиперсоничне балистичке ракете у Европи: Српски ловци МиГ-29 интегрисали кинеско наоружање за револуционарно повећање ватрене моћи".

11. 03. 2026. у 16:26

ХАОС У ЦРНОГОРСКОМ ПАРЛАМЕНТУ: Прекинута седница, посланици ДПС-а опколили сто председавајућег

ХАОС У ЦРНОГОРСКОМ ПАРЛАМЕНТУ: Прекинута седница, посланици ДПС-а опколили сто председавајућег

СЕДНИЦА Скупштине Црне Горе прекинута је данас након што је председавајући у том моменту потпредседник парламнета Борис Пејовић (ПЕС) одузео реч посланици опозиционе Демократске партије социјалиста Александри Вуковић Куч.

11. 03. 2026. у 17:06

У ХРВАТСКОЈ ИРАНСКА ТЕРОРИСТИЧКА ЈАЗБИНА Милановић љут на Израелца: Брацо, ово је Загреб - не Тел Авив!

"У ХРВАТСКОЈ ИРАНСКА ТЕРОРИСТИЧКА ЈАЗБИНА" Милановић љут на Израелца: "Брацо, ово је Загреб - не Тел Авив!"

ПРЕДСЕДНИК Хрватске Зоран Милановић коментарисао је наводе израелског амбасадора Герија Корена да се усред Загреба налази терористичка јазбина у иранској амбасади.

11. 03. 2026. у 13:59

Коментари (1)

Циклус и губитак гвожђа: Скривени разлог за умор код многих жена